多拱面系杆拱桥吊索张拉控制方法的创新技术研究
Research on Innovative Techniques for Suspenders Tensioning Control of Multi-Rib Tied-Arch Bridges
DOI: 10.12677/hjce.2026.153048, PDF, HTML, XML,   
作者: 姚川超:中交二航局第三工程有限公司,江苏 镇江
关键词: 多拱面系杆拱桥吊索张拉控制频率法Multi-Rib Tied-Arch Bridge Suspenders Tension Control Frequency Method
摘要: 本文以宜丰县工业园至火车站公路新建工程的跨武吉高速立交桥三拱面钢箱系杆拱桥为研究背景,探讨了施工中多拱面系杆拱桥张拉力计算方法以及不同施工阶段的索力测试方法。针对多拱面系杆拱桥吊索张拉创新提出并采用了在张拉阶段采用以张拉千斤顶和相应的油压表为主、频率法为辅助的组合式控制,在吊索非张拉阶段采用张拉阶段标定的索力系数和吊索的弯曲刚度作为依据并用频率法进行测试的综合控制方法。经过实际应用表明,该综合方法在多拱面系杆拱桥施工过程中对吊索索力的控制取得了较为理想的效果,能够为未来类似桥梁的索力控制提供参考。
Abstract: This paper takes the three-rib steel box tied-arch bridge of the cross-Wuji Expressway overpass in the newly constructed road project from the Industrial Park to the Railway Station in Yifeng County as the research background. It explores the calculation method for tensioning forces in multi-rib tied-arch bridges during construction and the cable force testing methods at different construction stages. For the tensioning of suspenders in multi-rib tied-arch bridges, an innovative approach is proposed and adopted: during the tensioning stage, a combined control method is employed, primarily relying on tensioning jacks and corresponding pressure gauges, supplemented by the frequency method; in the non-tensioning stage of the suspenders, a comprehensive control method is used, based on the cable force coefficient calibrated during the tensioning stage and the bending stiffness of the suspenders, with testing conducted via the frequency method. Practical applications have shown that this comprehensive method achieves satisfactory outcomes in controlling the cable forces of suspenders during the construction of multi-rib tied-arch bridges, and it can serve as a reference for cable force control in similar bridges in the future.
文章引用:姚川超. 多拱面系杆拱桥吊索张拉控制方法的创新技术研究[J]. 土木工程, 2026, 15(3): 1-9. https://doi.org/10.12677/hjce.2026.153048

1. 引言

下承式多拱面钢箱拱 + 钢混凝土组合桥面板结构是一种新型桥梁型式,具有三个及以上拱面的空间复杂结构体系,能适应大交通流量。吊索是主要的传力构件,而吊索的索力还关系着整座空间桥梁受力状态和线形,继而影响到桥梁结构的安全性。所以对这类桥梁在建设过程中索力的精确张拉控制是非常有必要的。传统索力检测往往只注重以频率振动法为主的张拉阶段[1]-[3],该检测过程误差相对较大,本文以一座三拱面系杆拱桥为例详细介绍吊索索力在张拉与非张拉阶段索力检测计算过程和控制措施,实现提高多拱面系杆拱桥吊索索力测试的精度与效率。

2. 工程概况

跨武吉高速立交桥主跨跨径60米,桥宽29米,桥面整体布置双向四车道的多拱面钢箱拱 + 下承式钢混凝土组合桥面板结构。拱轴采用抛物线,跨比:1/3.64,按二次抛物线设置预拱度。其中(边)拱肋拱轴的抛物线方程为:y = −0.018331622x2 + 1.099949x,其中Y为竖向高程,X为横坐标。大桥施工方案结合现场条件和武吉高速的保通需求,采用整体拼装顶推法,先在小桩号路基上建设拼装平台安装拱肋、纵梁和横梁等,验收合格后整体顶推过武吉高速。桥梁结构图如图1图2所示。

每个拱面上布置9对吊索,共计54根吊索,跨武吉高速立交桥吊索编号如图3所示。

采用整体拼装顶推法,在顶推平台上先安装拱肋、纵梁、横梁,整体顶推过武吉高速,从而完成了大桥的施工方案。这座大桥吊索之多,无法一次精准张拉到位。考虑施工便利和结构的安全稳定性,需合理选择吊索张拉时机,并优化吊索张拉顺序、张拉次数与张拉力大小,从而得到合理施工状态。

3. 施工控制结构分析模型

本桥空间结构作用明显,整个施工过程均以空间分析的方法对整个施工进行了详细的模拟,如图4所示的空间分析模型。

Figure 1. Elevation layout of the bridge (unit: cm)

1. 桥型立面布置图(单位:cm)

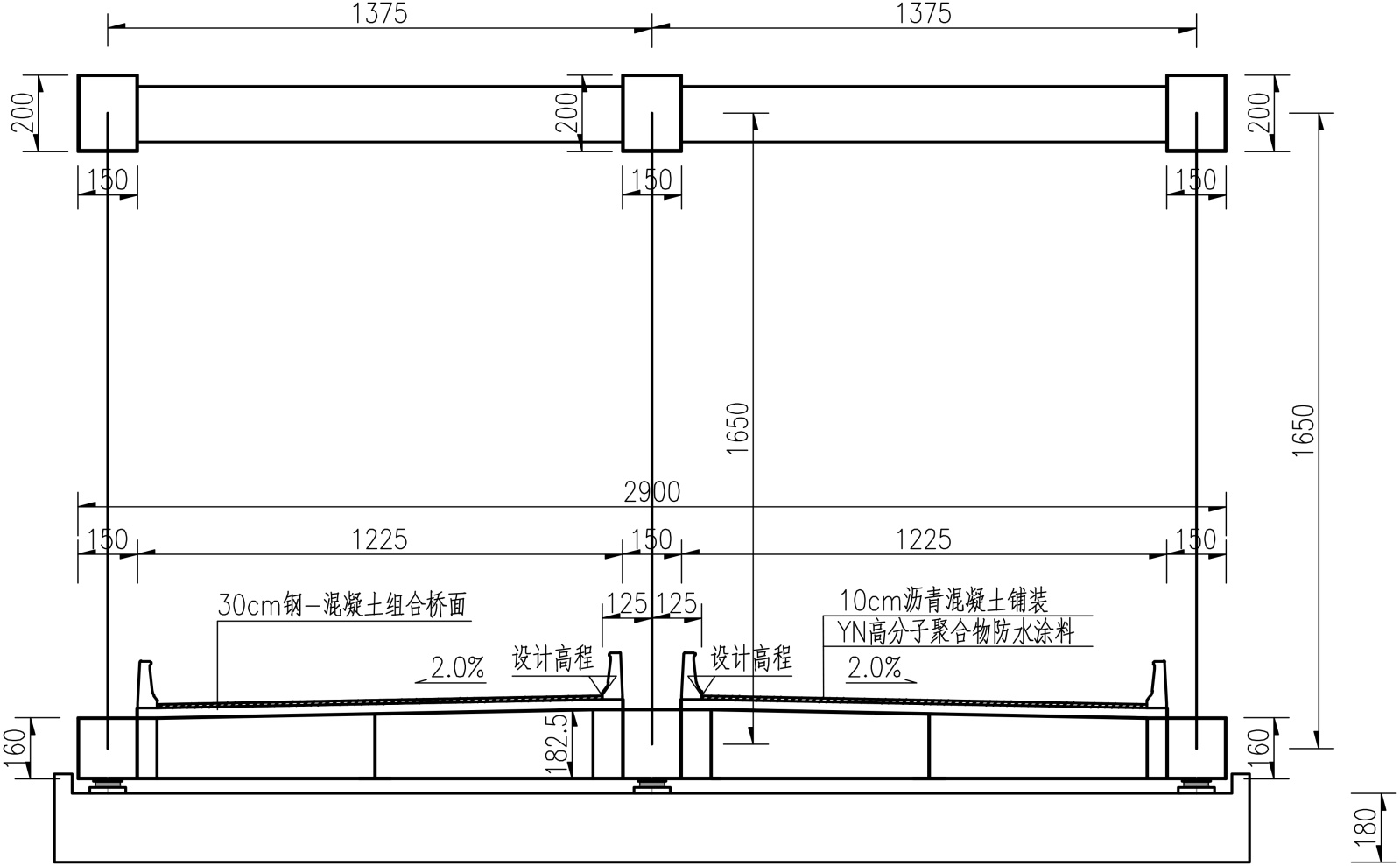
Figure 2. Cross-sectional layout of the bridge (unit: cm)

2. 桥型横断面布置图(单位:cm)

4. 吊索施工张拉力的确定

由于跨武吉高速立交桥主跨钢箱系杆拱桥三个拱面上的54根拉索不可能同时张拉到位,因此会出现拉索张拉先后顺序的情况,在此情况下张拉过程中后张拉的吊索必然对先张拉的吊索产生影响。因此,这些影响必须在确定拉索和拉力的过程中加以考虑,力求单根拉索一次张拉到位,确保吊索张拉力能够满足设计及规范要求[4]-[7]

通过Midas/Civil软件对本桥吊索张拉过程进行有限元分析,最终确定吊索张拉方案为一次性张拉,在桥面板吊装完成后,桥面混凝土后浇带尚未浇注前进行,其目的是使整个结构绝大部分的重量通过吊索传递到中拱和边拱,通过拱的推力使主梁在水平方向充分变形,减小结合梁桥面板的水平拉力。

Figure 3. Schematic diagram of suspenders layout

3. 吊索平面位置示意图

Figure 4. Diagram of the spatial computational model

4. 空间计算模型图

根据施工现场条件和保障施工过程拱肋稳定安全的要求,本桥吊索张拉采用一次张拉对称六根吊索的方法,张拉顺序为1:Z1//Z2、B1/B2;2:Z17/Z18、B17/B18;3:Z5/Z6、B5/B6;4:Z13/Z14、B13/B14;5:Z9/Z10、B9/B10;6:Z7/Z8、B7/B8;7:Z11/Z12、B11/B12;8:Z3/Z4、B3/B4;9:Z15/Z16、B15/B16。

设定张拉编号为1的吊索单位力对其余吊索的影响为 a 12 a 13 a 19 ,则张拉顺序号为m的吊索对其余吊索的影响为 a m1 a m2 a mm1 a mm+1 a m9 ( a mn 中的mn分别表示张拉顺序号和其余吊索号,如 a m23 表示对称张拉Z17/Z18和B17/B18吊索单位力对Z5/Z6和B5/B6吊索的影响),系数 a mn 可以通过有限元求解求得。设每对吊索在其原索力的基础上张拉了 Δ T n ,张拉开始时各吊索索力为 T n 0 ,张拉结束时各吊索索力为 T n ,则有:

T 1 = T 1 0 +Δ T 1 +Δ T 2 a 21 ++Δ T 9 a 91

T 2 = T 2 0 +Δ T 1 a 12 +Δ T 2 +Δ T 3 a 32 ++Δ T 9 a 92

T 9 = T 9 0 +Δ T 1 a 19 +Δ T 2 a 29 ++Δ T 8 a 89 +Δ T 9

将上式写成矩阵形式为:

( T 1 T 2 T 3 T 4 T 5 T 6 T 7 T 8 T 9 )=( T 1 0 T 2 0 T 3 0 T 4 0 T 5 0 T 6 0 T 7 0 T 8 0 T 9 0 )+( 1 a 21 a 31 a 41 a 51 a 61 a 71 a 81 a 91 a 12 1 a 32 a 42 a 52 a 62 a 72 a 82 a 92 a 13 a 23 1 a 43 a 53 a 63 a 73 a 83 a 93 a 14 a 24 a 34 1 a 54 a 64 a 74 a 84 a 94 a 15 a 25 a 35 a 45 1 a 65 a 75 a 85 a 95 a 16 a 26 a 36 a 46 a 56 1 a 76 a 86 a 96 a 17 a 27 a 37 a 47 a 57 a 67 1 a 87 a 97 a 18 a 28 a 38 a 48 a 58 a 68 a 78 1 a 98 a 19 a 29 a 39 a 49 a 59 a 69 a 79 a 89 1 )( Δ T 1 Δ T 2 Δ T 3 Δ T 4 Δ T 5 Δ T 6 Δ T 7 Δ T 8 Δ T 9 ) (1)

求解方程(1)即可得到 { Δ T n } ,设各对吊索力张拉力为 T n ,易得:

T 1 = T 1 0 +Δ T 1

T 2 = T 2 0 +Δ T 1 a 12 +Δ T 2

T p = T 9 0 +Δ T 1 a 19 +Δ T 2 a 29 ++Δ T 8 a 89 +Δ T 9

同样将上式写成矩阵形式为:

( T 1 T 2 T 3 T 4 T 5 T 6 T 7 T 8 T 9 )=( T 1 0 T 2 0 T 3 0 T 4 0 T 5 0 T 6 0 T 7 0 T 8 0 T 9 0 )+( 1 a 12 1 a 13 a 23 1 a 14 a 24 a 34 1 a 15 a 25 a 35 a 45 1 a 16 a 26 a 36 a 46 a 56 1 a 17 a 27 a 37 a 47 a 57 a 67 1 a 18 a 28 a 38 a 48 a 58 a 68 a 78 1 a 19 a 29 a 39 a 49 a 59 a 69 a 79 a 89 1 )( Δ T 1 Δ T 2 Δ T 3 Δ T 4 Δ T 5 Δ T 6 Δ T 7 Δ T 8 Δ T 9 ) (2)

通过公式(2)可以计算出各吊索的施工张拉力。如果需要调整张拉的顺序,只需在公式(1)和(2)的系数矩阵中变换 a mn 的位置即可。

通过计算得出的本桥吊索施工的张拉力及张拉顺序如表1所示。

Table 1. Tensioning force and sequence of suspenders

1. 吊索张拉力及张拉顺序表

吊索张拉顺序

吊索编号

吊索类型

张拉力

吊索编号

吊索类型

张拉力

(kN)

(kN)

1

Z1/Z2

GJ15-12

493

B1/B2

GJ15-6

247

2

Z17/Z18

GJ15-12

530

B17/B18

GJ15-6

252

3

Z5/Z6

GJ15-12

585

B5/B6

GJ15-6

311

4

Z13/Z14

GJ15-12

610

B13/B14

GJ15-6

308

5

Z9/Z10

GJ15-12

545

B9/B10

GJ15-6

280

6

Z7/Z8

GJ15-12

443

B7/B8

GJ15-6

237

7

Z11/Z12

GJ15-12

412

B11/B12

GJ15-6

209

8

Z3/Z4

GJ15-12

412

B3/B4

GJ15-6

196

9

Z15/Z16

GJ15-12

425

B15/B16

GJ15-6

196

5. 索力在施工过程中的控制方法

5.1. 试验检测方法

目前主要采用压力传感器测量法、张拉千斤顶法、光纤光栅法、频率振动法(简称频率法)、磁通量传感器法等对吊索索力进行测试[1]-[3]。其中使用频率振动法最为普遍。

5.2. 张拉过程控制方法

频率法是根据吊索索力与振动频率之间的关系来求得索力。频率法测索力的理论基础是弦振动理论,对于一根张紧的确定的吊索,只要测出其振动频率,其索力即可由吊索微元的动力平衡方程和边界条件求得[7]

对于两端铰支的索,其动力平衡微分方程在不考虑吊索抗弯刚度时的解法是:

T= 4w l 2 g ( f n n ) 2 =4m l 2 f 1 2 =K f 1 2 (3)

对于两端铰支的索,其动力平衡微分方程在考虑吊索抗弯刚度时的解法是:

T= 4w l 2 g ( f n n ) 2 n 2 π 2 EI l 2 =4m l 2 f 1 2 n 2 π 2 EI l 2 =K f 1 2 n 2 π 2 EI l 2 (4)

在公式(3)和公式(4)中,T——表示吊索索力,w——表示单位吊索长度的重量,l——表示吊索的计算长度,g——表示重力加速度, f n ——表示吊索的n阶固有振动频率,n——表示振动频率的阶数, f 1 ——表示基频,m——表示吊索单位长度的质量,EI——表示吊索的弯曲刚度,K——表示索力系数。

对于公式(3)与公式(4),除了振动频率参数未给出,其它参数均为已知参数,只需测出吊索的振动频率即可算出吊索的索力,可以通过专用仪器测出吊索的振动频率。本桥采用索力动测仪来进行吊索索力的测试,在测试前事先输入各吊索的索力系数,就能将吊索在测试时的拉索力的实时显示出来。

但至今吊索有效计算长度的合理取值仍未能得到一个比较准确的取值范围。不能简单的取拉索两个锚固端点之间的长度作为计算长度,而要根据刚度比来考虑这部分参与计算的长度,因为吊索两端都有锚头和相应的连接部分,所以这部分的刚度要比其他部分的刚度大得多。一般都是根据以往总结的施工经验粗略的估算索长,亦或通过现场试验取得。

在吊索长度足够长的情况下弯曲刚度的影响可以忽略,采用公式(3)来计算索力可以反映出实际情况。然而,本桥吊索长度相对比较短,均在20 m以下,弯曲刚度对其索力计算的影响较大,不能忽略,故本桥吊索应采用公式(4)进行计算。但是采用公式(4)不能够在现场实时计算吊索的索力。采用公式(3)测完之后可立即知道吊索的索力。在吊索首次张拉索力测试前,K系数近似取l为吊索两锚固端点之间的距离,由此测得的索力比实际索力会偏大一些。

故而以标定的张拉千斤顶及配套油压表控制为主,辅以频率法试验,对吊索张拉过程中的索力进行测试。详细步骤为:首先依据千斤顶的标定方程和张拉力计算出每根吊索张拉时油压表的读数记为 α ,在张拉时必须精确控制油压表的读数,在吊索锚固螺母拧紧之后千斤顶回油以前,记录油压表的读数为 b ,与此同时用索力动测仪测量吊索的索力记录为 T 1 ;在千斤顶回油卸压后移顶前再次用索力动测仪测试吊索的索力记录为 T 2 ,在测量 T 1 T 2 时尽量测其一阶频率,若确实无法测不出一阶时,应重视不同阶频率对测试结果的影响。由于吊索张拉同时在三个拱面上进行,每次张拉边拱四根吊索,中拱两根吊索,如果满足以下几个条件:1) 油压表的读数 b 与事先计算的读数 α 相等或者略大;2) 边拱四根吊索的 T 1 基本相等,中拱两根吊索的 T 1 基本相等;3) 边拱四根吊索的 T 2 基本相等,中拱两根吊索的 T 2 基本相等;4) 每根吊索的 T 1 T 2 近似相等,或 T 2 略小于 T 1 ;此时可认为这六根吊索已张拉完成,可继续张拉后续的吊索。否则要分析原因,比如当同一根吊索的 T 2 T 1 小很多的时候或者是四根吊索的 T 2 有一根(两根)非常明显比另外三根(两根)小很多,则很可能是锚固螺母没拧紧或者锚垫板上有杂屑未清除干净导致索力损失,或者吊索没有张拉到位,则需补张拉索力偏小的吊索。总之通过 α b T 1 T 2 这几个数值可以有效地保证吊索张拉的精度,而且可通过这几个数值的对比可以对异常情况很快地分析出原因,及时得出有效的解决办法。该控制方法有效的将千斤顶法和频率法地结合起来,避免了由于锚固螺母没有拧紧、锚垫板上有杂屑残留等问题造成索力损失,而油压表读数显示索力达到要求所给技术人员造成的假象,同时弥补了频率法测索力时吊索计算长度取值不精确的不足之处。

5.3. 非张拉过程控制方法

以上方法虽然对于吊索张拉过程的控制可以取得较好的效果,但并不适用于非张拉施工阶段的索力测试。可以采用以下方法测试非张拉阶段的索力:在吊索张拉时,在吊索锚固螺母拧紧后、千斤顶回油之前,记下油压表的读数为 b ,同时用索力动测仪测量吊索的索力记录为 T 1 ,且需记录下频率 f n 和阶数n。将 b 代入千斤顶的标定方程中可求得千斤顶的张拉力为 Tq Tq 的结果和采用公式(4)计算的索力相等,故有:

Tq=4m l 2 ( f n n ) 2 n 2 π 2 EI l 2 (5)

将求得的 Tq 值、测得的 f n n代入式(5)可得吊索的计算长度 l 1 。令式(4)中的 l= l 1 可求得各非张拉施工阶段的实测索力。

6. 成桥状态吊索索力控制成果

将本文的吊索索力张拉控制方法应用在跨武吉高速立交桥主跨三拱面系杆拱桥的吊索张拉施工过程中,取得了较好的效果,如表2所示,成桥时三拱面系杆拱桥吊索索力实测值与理论值比较:

Table 2. Comparison of cable force data in completed bridge

2. 成桥索力数据比较表

左拱肋

中拱肋

右拱肋

吊索

理论值

实测值

误差

吊索

理论值

实测值

误差

吊索

理论值

实测值

误差

编号

(kN)

(kN)

(%)

编号

(kN)

(kN)

(%)

编号

(kN)

(kN)

(%)

B1

203

198

−2.6

Z1

480

459

−4.3

B1

203

197

−3.2

B2

203

196

−3.5

Z2

480

500

4.1

B2

203

200

−1.4

B3

260

270

4.0

Z3

612

586

−4.3

B3

260

250

−3.9

B4

260

266

2.3

Z4

612

629

2.8

B4

260

247

−4.8

B5

254

266

4.7

Z5

602

599

−0.5

B5

254

265

4.3

B6

254

260

2.4

Z6

602

631

4.8

B6

254

262

3.3

B7

271

279

2.9

Z7

610

640

5.0

B7

271

277

2.4

B8

271

259

−4.4

Z8

610

621

1.7

B8

271

275

1.4

B9

248

239

−3.5

Z9

609

586

−3.8

B9

248

236

−4.7

B10

248

249

0.5

Z10

609

596

−2.2

B10

248

240

−3.3

B11

270

280

3.7

Z11

614

600

−2.3

B11

270

271

0.5

B12

270

283

4.9

Z12

614

599

−2.4

B12

270

263

−2.4

B13

253

249

−1.5

Z13

610

640

5.0

B13

253

264

4.3

B14

253

244

−3.5

Z14

610

636

4.2

B14

253

262

3.7

B15

258

265

2.8

Z15

621

611

−1.6

B15

258

270

4.7

B16

258

245

−4.9

Z16

621

600

−3.3

B16

258

270

4.5

B17

208

200

−4.0

Z17

505

480

−4.9

B17

208

199

−4.2

B18

208

201

−3.2

Z18

505

480

−5.0

B18

208

206

−1.1

表2中的数据可以看出,左边拱、中拱肋、右边拱成桥后实测索力与计算的理论索力最大偏差分别为4.9%、5.0%和−4.8%,其中中拱肋误差最大但均在5%以内,符合设计和施工规范的要求(规范要求为±5%),良好的吊索张拉数据结果保证了三拱面系杆拱桥成桥线形平顺和内力分布合理。

7. 结论

1) 本文建立了多拱面系杆拱桥基于有限元分析的吊索张拉顺序与张拉力优化方法,通过矩阵计算精细量化了后张拉吊索对先张拉索力的影响情况,实现单根吊索一次张拉到位,以减少施工过程中不断调整的情况。

2) 本文提出了千斤顶油压表控制和振动频率法双控索力测试技术,实现了多拱面系杆拱桥吊索索力测试的高精度与高效率。

3) 本文采用对称分组张拉(每次6根)和一次张拉策略,兼顾武吉高速保通需求与拱肋稳定性,缩短工期并降低安全风险。

4) 在跨武吉高速三拱面系杆拱桥应用中,成桥状态吊索索力实测值与理论值误差均在5%之内,满足规范要求,证明该方法有效保障了结构内力分布合理与线形平顺,可为其它类似桥梁提供参考。

参考文献

[1] 吴承龙. 钢箱系杆拱桥吊索张拉方案比选分析[J]. 西部交通科技, 2023(11): 114-117.
[2] 张守海. 96 m钢管混凝土系杆拱桥吊索张拉技术研究[J]. 铁道建筑技术, 2015(7): 90-93.
[3] 钟健聪, 李新平. 空间系杆拱桥吊杆张拉控制的研究[J]. 广东公路交通, 2004(2): 1-4.
[4] 林刘赞, 贾丽君. 系杆拱桥吊杆多次张拉的计算方法[C]//第十八届全国桥梁学术会议论文集(下册). 北京: 人民交通出版社, 2008: 969-973.
[5] 张维国, 贾乃波, 刘祥高, 等. 再谈系杆拱桥吊杆初始张拉力的计算方法[J]. 水利水电科技发展, 2022, 22(3): 26-28.
[6] 于琦, 孟少平. 系杆拱桥吊杆张拉控制有限元模拟方法研究[J]. 特种结构, 2008, 25(1): 88-91.
[7] 赵亮, 袁帅华. 无推力斜靠式拱桥施工过程中吊索索力控制[J]. 重庆交通大学学报(自然科学版), 2014, 33(4): 17-23.