复合内衬作用下C-T连接件纵缝接头抗剪力学性能的数值模拟研究
Numerical Study on the Shear Mechanical Behavior of Longitudinal Joints with C-T Connectors Considering the Effect of Composite Lining
DOI: 10.12677/hjce.2026.153063, PDF, HTML, XML,   
作者: 吴士磊, 张子新:同济大学土木工程学院,上海;金国龙, 张 颖:中船第九设计研究院工程有限公司,上海
关键词: C-T连接件纵缝接头复合内衬抗剪性能数值模拟C-T Connector Longitudinal Joint Composite Lining Shear Performance Numerical Simulation
摘要: 为研究复合内衬作用下C-T快速连接件纵缝接头的抗剪力学性能,建立了考虑复合内衬的纵缝接头三维有限元模型,分析了接头在剪切荷载及不同轴力作用下的受力特性、破坏形态与变形规律。结果表明,纵缝接头的受力过程可划分为摩擦、装配间隙弥合、连接件受力及混凝土破坏四个阶段,其极限抗剪承载力与轴力呈线性关系。T型连接件为主要受力构件,其腹板在剪切过程中同时承受剪力与拉力作用发生屈服,是接头中的薄弱部位。接头区域混凝土破坏以拉伸破坏为主,局部出现压缩破坏。数值结果显示,纵缝接头抗剪破坏时的错台量约为1.5 mm,轴力对错台量影响不显著;复合内衬具有良好的变形协调能力,其表面错台量较混凝土试块错台量平均降低约36%,能有效提高隧道内部光滑度与平整度。
Abstract: To investigate the shear performance of longitudinal joints with C-T rapid connectors considering the composite lining effect, a three-dimensional finite element model of the joint incorporating the composite lining was established. The mechanical response, failure modes, and deformation behavior of the joint under shear loading and varying axial forces were analyzed. The results indicate that the shear behavior of the longitudinal joint can be divided into four stages: friction, assembly gap closure, connector load-bearing, and concrete failure. The ultimate shear capacity of the joint exhibits an approximately linear relationship with the applied axial force. The T-shaped connector acts as the primary load-bearing component; its web yields under the combined action of shear and tensile stresses, constituting the critical weak region of the joint. Concrete damage in the joint area is dominated by tensile failure, accompanied by localized compressive failure. Numerical results show that the joint offset at shear failure is approximately 1.5 mm, which is only marginally affected by the axial force. Due to its favorable deformation compatibility, the composite lining reduces the surface offset at the joint by an average of approximately 36% compared with that between concrete segments, thereby effectively improving the smoothness and flatness of the tunnel’s inner surface.
文章引用:吴士磊, 金国龙, 张颖, 张子新. 复合内衬作用下C-T连接件纵缝接头抗剪力学性能的数值模拟研究[J]. 土木工程, 2026, 15(3): 153-165. https://doi.org/10.12677/hjce.2026.153063

1. 引言

目前,国内盾构隧道普遍采用衬砌管片拼装成环的结构形式,管片与管片之间通过连接件进行连接。接头的受力性能直接关系到衬砌结构的整体刚度、防水性能及服役安全性。

国内的盾构隧道通常采用螺栓接头作为连接件,其造价低,受力性能可靠,适用性好,但也存在一定弊端。一方面安装连接螺栓需要在管片上设置手孔,从而削弱管片接头处的承载能力,易导致局部开裂并引发渗漏水问题,造成螺栓锈蚀;另一方面,螺栓安装依赖人工操作,施工效率低的同时难以保证施工质量[1]。上世纪末,日本与欧洲研制出一种新型快速连接件,其安装原理类似榫卯结构,可依靠机械化设备自动完成拼装,在减少人工干预的同时提高管片拼装精度[2]。此外,使用这种快速连接件的管片无需设置手孔,管片完整性好,并且成型的隧道内壁光滑、完整性高、接缝防水性能好[3],在隧道工程中具有广阔的应用前景。

除连接方式外,隧道内衬体系的构造形式同样对接头受力行为产生重要影响。为提高隧道防水、耐久性,一种由膨润土毯与玻璃钢组成的复合内衬体系被提出。该复合内衬在纵缝处连续布置,其柔性层与高刚度内衬板的协同作用可能改变接头区域的应力传递路径与变形协调机制,从而对纵缝接头的剪切响应与错台发展造成一定影响。

现有研究主要围绕快速连接件本体的结构形式、安装机理及承载性能展开,但多基于单一混凝土管片结构。岳树桥等[4]对插入式快速连接件的安装和承载机理进行了分析,提出连接件极限承载力的公式,并对连接件预紧力的形成过程进行了进一步探讨;官林星等[5]开展了接头抗拉物理实验以研究连接件的结构形式、材料性能、连接件与锚筋之间的连接、连接件与混凝土管片之间力的传递;管攀峰等[6]分析了不同快速连接件的接头形式,开展了接头试验,获得了新型快速接头的抗弯刚度、抗剪刚度、接头弯矩传递系数等参数;柳献等[7] [8]对C-T快速连接件开展了试验研究,探究新型连接件极限承载性能,明确了其破坏过程和破坏状态,并且进一步研究了单排与双排快速连接件两种接头形式的力学行为,讨论了不同接头形式的受力演变特征、破坏模式和受力机制等;肖明清等[1]对C-T快速连接件开展了接头压弯实验,探究采用C-T快速连接件的管片接头在不同受力形式下的受力性能、破坏模式和受力性能变化规律。然而,上述研究大多基于单一混凝土衬砌体系,而没有涉及复合内衬对接头的影响。

基于此,本文依托实际工程背景,建立了考虑玻璃钢复合内衬作用的C-T快速连接件纵缝接头三维有限元模型,分析复合内衬参与条件下纵缝接头的剪切力学响应、破坏过程及错台变形特征,揭示复合内衬对快速连接件纵缝接头受力行为的影响机制,为新型连接件与复合内衬协同设计提供理论依据。

2. C-T快速连接件剪切数值模拟方案

2.1. 几何模型

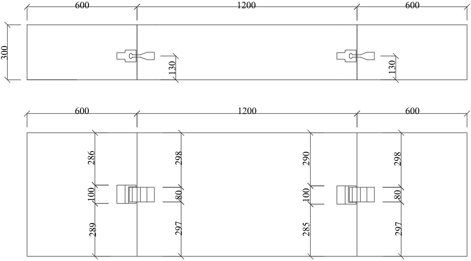
使用有限元软件ABAQUS进行三维建模分析,考虑到纵缝中两C-T接头在抗剪性能上相互影响较小,本文选取单个C-T接头作为研究对象。试件纵向长度取管片1/2环宽,为675 mm,厚度取300 mm。剪切试件由左剪切块、右剪切块及中间剪切块三部分组成。其中,左右剪切块横向尺寸为600 mm,中间剪切块横向尺寸为1200 mm。为便于建模分析,对模型几何进行合理简化:1) 保留管片纵缝的凹槽结构,忽略橡胶止水条以及传力衬垫对接头剪切性能的影响;2) 用直接头代替弯接头[9] (图1)。

Figure 1. The size of specimens (mm)

1. 试件尺寸(mm)

剪切块、支座、加载杆、C-T连接件、锚固钢筋、膨润土、玻璃钢采用实体单元进行建模;钢筋笼使用空间桁架单元建模,并进行一定简化,忽略构造钢筋,仅保留纵向受力钢筋以及箍筋;无纺布、土工编织布采用空间壳单元建模。数值模型的整体组成如图2所示。

Figure 2. The components of numerical model

2. 数值模型组成

2.2. 材料本构参数

钢筋及C-T连接件所用铸铁材料均采用双折线弹塑性本构模型进行简化描述,其本构曲线由弹性段和强化段两部分组成,材料在达到屈服应力前表现为弹性,当材料达到屈服应力后进入塑性阶段,其弹性模量折减为弹性解答的1/100。钢筋以及铸铁件的材料参数根据《混凝土结构设计标准》(GB/T 50010-2010) [10]以及《钢结构设计标准》(GB 50017-2017) [11]选取。加载杆、支座使用弹性本构,不考虑其屈服及极限强度。钢材材料参数如表1所示。

Table 1. Steel constitutive parameters

1. 钢材本构参数

材料

密度/g∙cm−3

弹性模量/MPa

泊松比

屈服应力

塑性应变

HPB300

7.85

210,000

0.3

300

0

420

0.058

HRB400

7.85

210,000

0.3

400

0

540

0.068

ZG310-570

7.85

210,000

0.3

310

0

570

0.124

support

7.85

210,000

0.3

混凝土选择混凝土塑性损伤模型(Concrete Damaged Plasticity, CDP),该模型能够较好地描述混凝土在受压和受拉条件下的非线性力学行为,且其中的拉损伤与压损伤可以反应混凝土受拉、受压而产生的破坏现象。相关参数根据《混凝土结构设计标准》(GB/T 50010-2010) [10]中C55混凝土的标准值进行选取,混凝土受拉、受压应力–应变关系根据规范中的推荐公式计算得到。材料参数如表2所示:

Table 2. Concrete constitutive parameters

2. 混凝土本构参数

密度/g∙cm−3

等级

弹性模量/GPa

屈服应力/MPa

屈服应变

极限应力/MPa

泊松比

2.4

C55 (压)

35.5

30.25

0.000727

35.5

0.2

2.4

C55 (拉)

35.5

2.74

0.000035

2.74

0.2

复合内衬由无纺布、膨润土、土工编织布以及玻璃钢四部分组成,各组成材料均采用线弹性本构模型。部分相关参数根据《轨道交通工程用天然钠基膨润土防水毯》(GB/T 35470-2017) [12]选择(表3)。

Table 3. Composite lining material parameters

3. 内衬材料参数

材料

密度/g∙cm−3

弹性模量/MPa

泊松比

无纺布

0.2

16

0.4

膨润土

1.8

20

0.45

土工编织布

1.1

1300

0.4

玻璃钢

2

30,000

0.3

2.3. 接触关系及边界条件

模型各部件之间主要有三种相互作用方式:表面与表面的接触,绑定以及嵌入,其中最主要的相互作用方式是表面与表面的接触[13]

混凝土试块之间、C-T连接件之间以及混凝土试块与支座之间采用表面与表面的接触,接触的法向行为选择硬接触,避免部件表面在法向发生穿透;接触的切向行为选择罚函数来定义摩擦系数,混凝土–混凝土接触面的摩擦系数为0.55 [14],C-T连接件表面之间的摩擦系数为0.30。考虑到理想状态下,混凝土与支座之间、混凝土与加载杆之间并不会发生相对位移,为简化模型节约计算资源,不定义以上接触关系的切向摩擦行为。膨润土毯中的膨润土实际是以膨润土颗粒的形式存在的,与无纺布以及编织土工布之间只有摩擦力作用,并且由于针刺工艺,无纺布与编织土工布之间存在纺线连接而不发生分离,因此定义膨润土层与无纺布、编织土工布之间的相互作用时,定义切向摩擦以及法向硬接触后,选择“不允许接触后分离”,来模拟针刺工艺对无纺布、编织土工布的约束。

钢筋笼、连接件锚固钢筋选择使用嵌入的相互作用方式,将其嵌入混凝土内部,与混凝土共同变形承受外力。C-T连接件作为预埋件埋设于混凝土内部,其表面与混凝土紧密粘接,在剪切过程中预埋件与混凝土几乎不产生滑移。因此,将连接件与混凝土相接触部分的表面与混凝土试块表面绑定在一起。内衬中的膨润土毯通过树脂胶与混凝土试块以及玻璃钢粘结在一起,结构胶抗剪强度和抗拉强度显著高于膨润土毯本体的强度,并非内衬的薄弱界面,并且试验中结构胶粘结层并没有发现明显的剥离现象,因此使用绑定的方式进行处理复合内衬层间接触行为。

试件边界条件参考以往类似试验的研究经验进行设置[15]:约束模型Y方向的位移为0,两端支座下表面完全固定,其中一端支座的侧面亦完全固定。

3. 计算结果分析

3.1. 接头承载能力

接头错台量与剪力曲线图如图3所示。结合加载过程对接头抗剪刚度的演化特征进行分析,可将接头的受力过程划分为4个阶段。

Figure 3. Relationship between offset and shear force under different axial forces

3. 不同轴力下错台量–剪切力关系曲线

1) 摩擦阶段(管片错台量 ≤ 0.05 mm)。在外部水土荷载作用下,管片环环整体发生变形而表现出受压的变形特征,管片与管片之间的纵缝接头承受轴力作用。在接头处轴力作用下,当接头所承受的剪力小于轴力所提供的最大静摩擦力时,接头间不会产生明显的相对滑移,接头错台量保持在0处几乎不会增加。由于在数值模拟中使用位移控制加载方式,曲线中该阶段错台量仍表现出微小增长。

2) 装配间隙弥合阶段(0.05 mm < 管片错台量 ≤ 0.7 mm)。如图4所示,在连接件中线对中拼装时,T型接头上下端与C型接头凹槽均存在1 mm的装配间隙,因此当剪力超过轴力所能提供的最大静摩擦后,接头开始产生错台。此时接头间的装配间隙尚未弥合,连接件尚未参与受力,接头在错台量迅速增大的同时,其承载的剪力并没有明显增大。当错台进一步增大,直到装配间隙弥合后,接头才再次具备抵抗剪力的能力。需要指出的是,在数值模型中,连续的弧线被离散为直线段,为保证接头整体的网格质量,在T型接头端部与接头真实结构存在一定差异,因此导致数值模型的实际装配间隙弥合距离小于1 mm。

Figure 4. Connector assembly gap

4. 连接件装配间隙

3) 连接件受力阶段(0.7 mm < 管片错台量 ≤ 1.5 mm)。当连接件的装配间隙弥合后,连接件开始承受剪力,对应于接头错台–剪力图中拼装间隙弥合段后的上升段。由于T型连接件端头与真实结构的差异,以及C型连接件内部的不规则形状的影响,在拼装间隙弥合阶段结束进入连接件受力阶段初期,剪力仅出现小幅增长,该阶段可视为连接件受力区域的调整阶段。随着受力状态逐渐稳定,T型连接件与C型连接件相互咬合,剪力呈现出近似线性增长。此时,连接件的主要受力区域集中于C型连接件榫槽下部以及T型连接件腹板处。相较于C型连接件下部榫槽,T型连接件腹板的厚度较小,为接头抗剪受力的不利部位,此处率先发生屈服(图5)。

(a) 连接件接触前

(b) 连接件接触后

Figure 5. Closure of the connector assembly gap

5. 装配间隙弥合

4) 混凝土破坏阶段(管片错台量 > 1.5 mm)随着错台量进一步增大,T型连接件腹板区域大部分进入塑性状态。同时,混凝土的部分区域也已超过其极限承载能力而发生破坏,无法继续为连接件提供有效约束力以抵抗剪力,接头结构趋于破坏。接头轴力与接头极限抗剪承载能力的关系如图6所示。轴力可以通过摩擦力为接头提供抗剪能力,因此轴力越大,接头的抗剪能力越高。数值结果表明,接头极限抗剪承载力(Qmax)与轴力(N)大体上呈线性关系,其拟合表达式为:Qmax = 0.455N + 124.146,R2 = 0.992。

3.2. 复合内衬受力及变形情况

复合内衬的受力以及变形主要发生在接头附近,并且沿接头方向没有明显变化。在膨润土毯层,应力主要分布在混凝土试块与膨润土毯接触的部分,而处于混凝土试块之间空隙处的膨润土毯几乎不产生应力。与膨润土毯相反,玻璃钢的应力则主要集中分布在接头混凝土试块之间空隙处对应的部分。二者之间的应力分布的差异是由二者物理性质上的差异造成的。在错台发生后,混凝土试块附近的膨润土在接触点局部发生变形,而对混凝土试块之间空隙处的膨润土影响较小;而玻璃钢具有较高的弹性模量与强度,错台发生后,膨润土将部分形变传递到玻璃钢上,玻璃钢在接头处发生整体的变形,导致位于混凝土试块间的玻璃钢产生较大应变,进而引起应力的集中(图7)。

Figure 6. Relationship between axial force and ultimate shear capacity

6. 接头轴力与极限抗剪承载力的关系曲线

(a) 内衬竖向变形分布

(b) 内衬应力分布

Figure 7. Deformation and stress distribution of the composite lining

7. 内衬变形和应力分布

分析内衬在错台方向上的位移,距离接头较远的内衬随试块一同位移,而在接头处位移变化较为剧烈,导致内衬产生较大形变,进而引起应力的集中。对比内衬中膨润土毯层与玻璃钢层的位移分布,可以发现相比膨润土毯,玻璃钢在接头处的位移变化范围更大,说明内衬将接头处混凝土试块错台的突变转化为内衬表面连续的变化,极大提高隧道内表面的平整度。

3.3. 纵缝错台量分析

纵缝错台量与剪力之间的关系见图3,由图可知,采用C-T快速连接件的纵缝接头在剪力作用下整体错台量较小,纵缝抗剪失效时的错台量稳定在约1.5 mm左右。在不同轴力条件下,纵缝达到抗剪失效状态时对应的错台量基本保持一致,未出现显著差异。这表明轴力主要影响纵缝接头的抗剪承载能力,而对抗剪失效时的错台量影响有限。而需要指出的是,数值模拟中未启用单元删除功能,当连接件附近混凝土达到破坏后,损伤单元仍然保留一定刚度并持续对连接件位移形成约束;而实际工程中连接件附近混凝土被压碎或剪切破坏后,其对连接件的侧向约束能力将显著降低甚至消失,导致接头在所承受的剪力增长不明显的情况下引起错台量的显著增大。因此,数值模拟得到的纵缝错台量相较于实际情况存在一定程度的低估。

对比混凝土试块的之间的错台量与纵缝处复合内衬表面的错台量可以发现,在相同剪力作用下,复合内衬表面的错台量要显著小于混凝土试块之间的错台量。在不同轴力下条件下,纵缝承受相同大小剪力作用时,内衬表面的错台量与混凝土试块错台量比值的平均值分别为64.997%、65.410%、65.941%;最小值分别为63.201%、64.325%、64.476%。换言之,相较于混凝土试块,复合内衬表面的错台量最大分别降低了36.799%、35.675%和35.524%,平均降低约35.999%。

上述差异主要源于复合内衬的结构组成与力学特性。复合衬砌由膨润土毯与玻璃钢组成,其中膨润土毯属于柔性材料,在玻璃钢与混凝土之间提供了一层缓冲,分散了接头处的应力,并通过自身变形吸收部分错台变形。其次,玻璃钢在接头处是连续的,整体变形协调能力明显优于接头处混凝土试块的离散接触,将接头处错台的突变转变为玻璃钢表面曲率的变化,在降低接头错台量的同时提高了隧道内表面的光滑度。

3.4. 接头破坏形态

接头破坏主要包括C-T连接件破坏及接头处混凝土破坏两种形式。

连接件破坏主要集中于T型连接件腹板位置。由于T型连接件端部与C型连接件榫槽相互咬合,随着接头错台量的逐渐增大,T型连接件腹板不仅承受剪力作用,同时还受到由几何约束引起的附加拉力作用。如图8所示,当接缝的错台量为1.5 mm时,T型连接件腹板位置的最大等效应力已达到324.6 MPa,结合应力分布云图以及T型连接件的屈服位置,可以发现该高应力区与以C型连接件下端为起点的约45˚方向基本一致,表明T型连接件腹板在剪力与拉力共同作用下发生弯剪破坏。

由于连接件在试件厚度方向上并未布置于中间位置,因此在接头承受剪力作用时,不同剪切块所参与承载的混凝土有效厚度存在差异:中间剪切块参与承载的混凝土厚度为170 mm,属于相对有利一侧;而左、右剪切块参与承载的混凝土厚度为130 mm,属于相对不利一侧,因此在接头处,左、右剪切块混凝土的破坏情况相较于中间剪切块要严重。混凝土的破坏以拉破坏为主,压破坏主要局限于连接件附近的局部区域。根据图10所示,左剪切块T型连接件下部混凝土出现压破坏,而拉破坏主要分布于T型连接件周围,并以约45˚的角度向混凝土试块底部扩展,在连接件下方形成明显的三角破坏区。结合图9(a)可知,剪切过程中左剪切块T型下部混凝土所承受的最大应力达到了约70 MPa,远超C55混凝土的抗压强度,这与混凝土压破坏所出现的位置高度一致。同时,接头处混凝土应力也主要分布在T型连接件以下,分布范围大体上与混凝土拉破坏形成的三角破坏区重合。

根据图10所示,右剪切块C型连接件上部混凝土出现明显压破坏。在无凹槽的一侧,拉裂缝分别从C型连接件上部端点附近与下部端点附近起裂,并沿约45˚角向混凝土试块底部延伸;而在有凹槽的一侧,由于凹槽处混凝土厚度较薄,结构相对薄弱,形成了沿凹槽由C型连接件向外延伸的拉裂缝,但C型连接件下部的拉裂缝未受凹槽影响,仍然以45˚角向试件底部延伸。对比图9(b)可以发现,拉破坏出现的位置与试块应力分布的范围大体上一致。

(a) 应力分布云图

(b) 屈服范围分布图

Figure 8. Stress distribution and yielding region of the connector

8. 连接件应力及屈服范围分布图

(a) 左剪切块

(b) 右剪切块

Figure 9. Stress distribution of specimens

9. 试件应力分布云图

(a) 左剪切块拉破坏

(b) 左剪切块压破坏

(c) 右剪切块拉破坏

(d) 右剪切块压破坏

Figure 10. Damage distribution of the specimens

10. 试件破坏分布

4. 结语

本文建立了考虑复合内衬作用的C-T连接件纵缝接头三维有限元数值模型,对复合内衬作用下C-T连接件纵缝接头的剪切力学特征开展了数值分析研究,得到结论如下:

1) 新型C-T连接件在剪切荷载的作用下的受力行为可以划分为摩擦阶段、拼装间隙弥合阶段、连接件受力阶段与混凝土破坏阶段四个阶段。接头的极限抗剪承载力与接头所受到的轴力总体上呈线性关系,随轴力的增大而增大。

2) 复合内衬的应力与变形高度集中于接头区域,其力学响应由材料特性与结构构造共同决定。膨润土毯刚度相对小,主要起到应力传递以及变形缓冲的作用;玻璃钢刚度相对大,是复合内衬中的主要承力部分。整体而言,复合内衬能够将混凝土块间错台的突变位移转化为内衬表面的连续变化,极大地提升了隧道内表面的整体平整度。

3) 在剪切荷载作用下,采用C-T快速连接件的纵缝接头整体错台量较小,其抗剪破坏时的错台量约为1.5 mm。受数值模型未考虑单元删除的影响,模拟结果相较于实际工况可能低估了接头破坏时的错台量,实际工程中接头破坏时的错台量可能大于1.5 mm。此外,受复合内衬变形协调作用的影响,接头处内衬表面的错台量相较于混凝土试块错台量平均降低约36%,有效改善了隧道内表面的光滑度与平整度。

4) 连接件在受到剪切荷载作用的过程中,T型连接件是承担荷载的主要受力构件。在剪切荷载作用下,T型连接件腹板位置同时承受剪力与拉力作用而发生屈服,是接头的受力薄弱部位。因此在进行连接件设计时,可酌情提高T型连接件腹板厚度以及强度,从而提高纵缝接头的整体抗剪承载能力。

5) 接头区域混凝土的破坏呈现出以拉伸破坏为主,局部伴随压缩破坏的复合模式。整体上,混凝土破坏主要表现为自连接件两端向混凝土试块下方约45˚方向扩展的拉裂缝,并形成三角破坏区;压破坏则高度集中于连接件附近局部区域,其应力水平显著超过混凝土抗压强度,与裂缝观测结果相互印证。

参考文献

[1] 肖明清, 薛光桥, 赵明应. 采用快速连接件的盾构隧道纵缝接头受力性能试验研究[J]. 现代隧道技术, 2022, 59(5): 154-162.
[2] 鲁志鹏, 何应道, 赵明应. 盾构隧道C-T型快速连接件受力性能研究[J]. 现代隧道技术, 2022, 59(增1): 542-549.
[3] 石龙, 石州, 单雪强, 等. 输水隧洞新型承插式接头力学特性及失效机制[J]. 人民长江, 2025, 56(7): 181-190.
[4] 岳树桥, 周质炎, 彭芳乐. 盾构隧道管片插入式快速连接件作用机理分析[J]. 地下空间与工程学报, 2010, 6(3): 532-536.
[5] 官林星, 孙巍, 张孟喜, 等. 盾构隧道环向快速连接件力学性能试验研究[J]. 隧道建设(中英文), 2022, 42(6): 967-974.
[6] 管攀峰, 杨志豪. 管片新型快速连接件研发及接缝力学性能分析[J]. 隧道与轨道交通, 2018(1): 1-6+55.
[7] 柳献, 李海涛, 曹伟飚. 盾构隧道新型纵缝接头抗弯性能试验对比研究[J]. 现代隧道技术, 2018, 55(S2): 1058-1068.
[8] 柳献, 白海文, 张帆, 等. 运用C-T型快速连接件的大直径盾构隧道纵缝接头力学行为分析[J]. 中国公路学报, 2025, 38(4): 158-170.
[9] 封坤, 何川, 肖明清. 高轴压作用下盾构隧道复杂接缝面管片接头抗弯试验[J]. 土木工程学报, 2016, 49(8): 99-110 + 132.
[10] 中华人民共和国住房和城乡建设部. 混凝土结构设计标准: GB/T 50010-2010 [S]. 北京: 中国建筑工业出版社, 2024.
[11] 中华人民共和国住房和城乡建设部. 钢结构设计标准: GB 50017-2017 [S]. 北京: 中国建筑工业出版社, 2017.
[12] 中国建筑材料联合会. GB/T 35470-2017轨道交通工程用天然钠基膨润土防水毯[S]. 北京: 中国标准出版社, 2017.
[13] 丁文其, 吴昱东, 张晓东, 等. 错台对盾构管片纵缝压弯力学性态的影响[J]. 中国公路学报, 2023, 36(11): 256-265.
[14] Wu, Y., Ding, W., Chen, Q. and Qiao, Y. (2025) Flexural Behaviour of Longitudinal Segment Joints with Quick C-T Type Connectors and Their Corrosion Characteristics. Tunnelling and Underground Space Technology, 161, Article ID: 106542. [Google Scholar] [CrossRef
[15] 洪剑宇, 甘海杰, 柳献. 内张钢圈加固盾构隧道管片接头破坏机制的精细模拟研究[J]. 铁道科学与工程学报, 2025, 22(10): 4610-4622.