多拱面系杆拱桥顶推施工监控技术研究
Construction Monitoring Technology for Incremental Launching of Multi-Rib Tied-Arch Bridges
摘要: 多拱面系杆拱桥是为适应我国交通流量不断增大而衍生出来的一种新型复杂桥梁结构,实施全过程施工监控对于确保结构安全性与施工精度具有不可或缺的关键作用。本文以宜丰县工业园至火车站公路新建工程项目的跨武吉高速立交桥主跨三拱面钢箱系杆拱桥为背景,对多拱面系杆拱桥跨高速公路整体顶推过程的施工监控技术开展研究。采用Midas/Civil有限元软件对拱桥整体顶推施工全过程进行精细化模拟计算,基于计算分析结果提出相应施工监控方案,同时在顶推施工过程对拱桥各工况结构状态进行实时监测,对实测数据与理论数据之间的误差进行实时分析,不断调整修正实际施工过程,保障了拱桥在顶推施工全过程中关键构件的受力及变形均在规范允许范围之内,顺利完成顶推施工。
Abstract: The multi-rib tied-arch bridge is a novel and complex bridge structure developed to accommodate the continuously increasing traffic flow in China. Implementing full-process construction monitoring plays an indispensable and critical role in ensuring structural safety and construction accuracy. This paper takes the main span—a three-arch steel box tied-arch bridge of the overpass crossing the Wuji Expressway in the Yifeng County Industrial Park to Railway Station Highway New Construction Project—as the engineering background. It focuses on the construction monitoring technology for the integral incremental launching process of a multi-rib tied-arch bridge across an expressway. By employing the finite element software Midas/Civil, refined simulation and calculation of the entire incremental launching construction process of the arch bridge were conducted. Based on the computational analysis results, a corresponding construction monitoring plan was proposed. Meanwhile, real-time monitoring of the structural states under various working conditions was carried out during the incremental launching process. The discrepancies between the measured data and theoretical data were analyzed in real-time, allowing for continuous adjustment and correction of the actual construction process. This ensured that the internal forces and deformations of key components remained within the allowable limits specified by the relevant codes throughout the entire incremental launching, leading to the successful completion of the launching construction.
文章引用:姚川超, 杨善军. 多拱面系杆拱桥顶推施工监控技术研究[J]. 土木工程, 2026, 15(2): 136-146. https://doi.org/10.12677/hjce.2026.152033

1. 引言

随着我国科学技术的不断发展,桥梁施工工艺也在不断优化和改进。桥梁顶推施工工艺因其不影响桥下交通等优点,被广泛应用于跨越高速公路等不中断交通的桥梁工程中[1]-[5]。多拱面系杆拱桥则是我国交通需求不断增大而衍生出来的新型复杂桥梁结构,对于多拱面系杆拱桥独特的受力形式,当采用顶推法施工时,拱肋、纵梁和横梁的应力与线形均会随着顶推的进行产生相应变化,影响结构安全状态。

因此,需要在多拱面系杆拱桥的顶推施工过程中引入施工监控技术,对桥梁结构的整个顶推施工过程全程进行监控,实时监测顶推过程中多拱面系杆拱桥中拱肋、纵梁和横梁的应力和变形,不仅可以避免出现局部应力过大导致结构断裂或屈曲的情况发生,还可以控制结构变形处在安全范围内,防止出现失稳现象。

本文以宜丰公路项目跨径60 m的三拱肋下承式钢箱系杆拱桥为例,通过Midas/Civil有限元软件模拟桥梁顶推施工过程,分析桥梁各构件受力及变形,确定最危险工况,对多拱面系杆拱桥顶推施工监控技术进行研究。

2. 工程概况

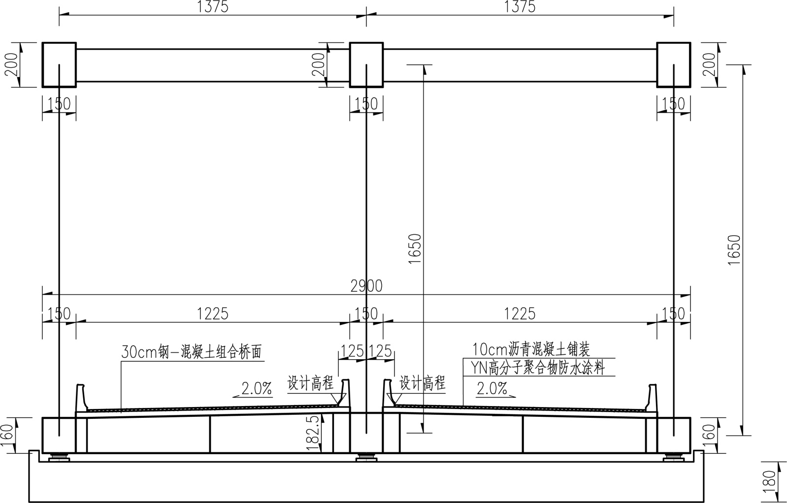
跨武吉高速立交桥主跨跨径为60 m的多拱面下承式钢箱系杆拱桥,桥宽29 m,桥面整体布置双向四车道。拱轴线采用抛物线,矢跨比:1/3.64,预拱度按二次抛物线设置。中(边)拱肋拱轴线的抛物线方程为 y=0.018331622 x 2 +1.099949x ,其中y为竖向高程,x为横向坐标。结合现场条件及武吉高速的保通需求,该桥施工方案采用顶推法,拱肋、纵梁、横梁先在小桩号路基上进行安装完成,整体顶推过武吉高速[2]。全桥包括拱肋、纵(横梁)、风撑等均采用钢结构,如图1图2所示。

3. 顶推施工监控计算

为了准确实施施工监控工作,对多拱面系杆拱桥顶推施工进行前期结构分析,通过Midas/Civil软件建立有限元仿真模型(图3),模拟多拱面系杆拱桥顶推施工过程,纵(横)梁、风撑、拱肋等均采用梁单元模拟,桥面板用板单元模拟,吊杆采用桁架单元模拟。顶推施工建模分析遵循“梁不动墩动”的思路,主要通过拼装节段的激活与边界条件的移动模拟顶推过程。主桥顶推施工过程最危险工况变形图如图4所示,成桥状态下的结构应力图与吊索索力图如图5图6所示。

Figure 1. Elevation layout of the bridge (Unit: cm)

1. 桥型立面布置图(单位:cm)

Figure 2. Cross-sectional layout of the bridge (Unit: cm)

2. 桥型横断面布置图(单位:cm)

Figure 3. Finite element model

3. 有限元模型

Figure 4. Deformation diagram of the main bridge under the most critical condition during incremental launching construction

4. 主桥顶推施工过程最危险工况变形图

Figure 5. Stress diagram of the bridge structure

5. 桥梁结构应力图

Figure 6. Cable force diagram of hangers in the completed bridge state

6. 吊杆成桥索力图

4. 顶推施工监控实施

4.1. 应力监控

结构各部位应力是最能反应结构状态正常与否的标准之一,通过实时地监测桥梁结构关键部位应力变化,将实测值与理论值进行比对,不仅可以对整桥的结构状态有个清晰的认知,还可以检验前期结构分析的准确性。

跨武吉高速立交桥拱肋、纵(横)梁、风撑等均为钢结构,拱肋、纵梁、横梁的应力监测选用表面型智能弦式应变计,通过焊接的方式固定在要监测部位钢结构的表面上,如图7所示。

(a) 表面型智能弦式应变计 (b) 现场安装示意图

Figure 7. Stress monitoring equipment and installation

7. 应力监测设备及安装

跨武吉高速立交桥为多拱面系杆拱桥,每一片拱肋的应力监测都至关重要,考虑拱肋整体的受力特殊性,选取每片拱肋的两处拱脚和拱顶等3个断面作为拱肋的应力监测断面。同时选取每个系梁的两端和跨中等3个位置作为应力监测断面。在拱肋和系梁应力监测断面的上下游各布置一个应力测点,方向为桥纵向。

跨武吉高速立交桥拱桥的横梁分为两种形式,一种是箱型截面的端横梁,另一种为工字型截面的普通横梁。对于本项目的横梁应力监测,选取跨中最长吊杆间的三根普通钢横梁进行监测,在每根钢横梁的跨中位置布设一个监测断面,共计3个监测断面。由于普通横梁截面为工字型,故每个监测断面应变计布设的位置为工字钢的上缘和下缘,方向为横桥向。

为了实时监测顶推过程中各控制断面的应力情况,及时对危险状态进行预警,本项目采用自动化采集和传输系统进行应力监控,如图8所示,将应力的采集间隔设置为五分钟,可以自动存储应力数据,可以在移动端或PC端查看,并且还有温度采集通道接口,可以实现温度的收集,这样不仅节省了人力物力,更主要的是可以及时发现结构应力正常与否,更直观地看到各部位的安全状态。

(a) 自动化采集箱 (b) 现场自动化采集箱接入应变计导线

Figure 8. Automated acquisition and transmission system for stress monitoring

8. 应力监测自动化采集和传输系统

4.2. 梁拱线形监控

拱肋和系梁的线形是否达到设计要求至关重要,不仅会影响整桥的线形,还会影响全桥的内力,准确的线形能够保障整个系杆拱桥的安全稳定。因此,要对拱肋和系梁的拼装线形,进行严密监测,为后续监控工作奠定坚实的基础。

拱桥的三片拱肋均布置线形测点,每片拱肋均在拱脚、四分点、拱顶等位置布设5个线形监测断面,每个断面布设1个监测点。每根系梁沿着纵桥向分别布设9个监测断面,分别位于每对吊杆的中间位置,且每个断面布置1个监测点位。

线形监测设备选用徕卡全站仪进行精密监测,在测量位置张贴反光贴和架设棱镜,分别观测并相互校对。

4.3. 轴向偏位监控

当桥梁采用顶推施工时,轴向偏位是监测顶推路径是否沿着设计路径前进的重要衡量指标,实时监测桥梁结构的轴向偏位,可以准确掌握桥梁的顶推状态,防止出现整体失稳的现象,确保了结构整体受力安全和线形变化稳定,保障了顶推施工的正常进行[6] [7]

轴向偏位监测测点布置在系梁的首末两端及跨中和拱肋拱顶,监测方法同线形监控。

当顶推施工过程中主桥轴向偏位过大,超出合理范围之内后立即进行纠偏,确保主桥轴向位置的准确和顺利落梁。

4.4. 导梁挠度监控

导梁是桥梁顶推过程中的重要构件,它不仅可以起到引导作用,帮助桥梁沿着顶推既定路线前进,更好跨越临时墩,还可以承担和分散荷载,减少桥梁顶推时悬臂端内力和挠度,导梁挠度的变化是反映导梁稳定性的一个重要体现,因此,在顶推过程中要对导梁挠度进行严密监测。

导梁挠度测点布置在每片导梁最前端,张贴反光贴,采用全站仪进行测量。

4.5. 临时墩沉降监控

临时墩是为了桥梁顶推而搭建的临时辅助结构,由于其性质,它的稳定性远远不如永久墩,但在顶推过程中,临时墩有着不可或缺的作用,不仅可以减少主梁的跨径,减小悬臂长度从而降低结构内力,还可以控制导梁和主梁的变形,提高顶推施工过程的安全性,因此,要密切关注临时墩状态。

在桥梁顶推施工过程中对武吉高速两侧的L5和L6两组临时墩进行监测,每组临时墩是由三个临时支架组成,共计六个临时支架,对每个支架上布设反光贴,在顶推过程中通过全站仪进行沉降监测。

5. 顶推施工监控结果分析

5.1. 应力监控结果

因顶推过程中对系梁、拱肋、导梁等的应力状态进行自动化实时监测,得到了大量实测数据,限于篇幅,仅列出一个拱肋的一个应力监测断面的时程曲线如图9所示。

Figure 9. Time-history curves of arch rib stress during incremental launching

9. 顶推过程拱肋应力监测时程曲线

从顶推过程应力监测数据看,各关键截面的应力状态是安全的。

5.2. 线形监控结果

系梁和拱肋拼装线形数据比较表如表1表2所示。

规范允许拼装误差要求为:系梁高程误差为±20 mm,拱肋拼装误差为±20 mm。通过表1可知,系梁最大拼装误差为13 mm,各系梁测点的误差大部分均在10 mm之内。由此可见,在钢箱系杆拱桥系梁拼装阶段,系梁的拼装线形满足监控要求。通过表2可知,钢箱系杆拱桥已拼装的三片拱肋线形状态均正常,误差范围均控制在20 mm之内,其中拱肋线形最大误差为20 mm,最小误差为3 mm,各拱肋测点的误差大部分均在10 mm以内。由此可知,在钢箱系杆拱桥拱肋拼装阶段,拱肋的拼装线形满足规范要求。

Table 1. Measured data of tie beam alignment

1. 系梁线形实测数据表

测量位置

左系梁高程

中系梁高程

右系梁高程

理论

实测

误差

理论

实测

误差

理论

实测

误差

(m)

(m)

(m)

(m)

(m)

(m)

(m)

(m)

(m)

吊杆1

78.196

78.195

−0.001

78.424

78.424

0

78.196

78.196

0

吊杆2

78.301

78.304

0.003

78.530

78.537

0.007

78.301

78.300

−0.001

吊杆3

78.391

78.378

−0.013

78.622

78.620

−0.002

78.391

78.386

−0.005

吊杆4

78.468

78.460

−0.008

78.699

78.708

0.009

78.468

78.475

0.007

吊杆5

78.531

78.535

0.004

78.762

78.757

−0.005

78.531

78.521

−0.010

吊杆6

78.580

78.575

−0.005

78.811

78.821

0.010

78.580

78.571

−0.009

吊杆7

78.616

78.610

−0.006

78.845

78.839

−0.006

78.616

78.620

0.004

吊杆8

78.637

78.649

0.012

78.866

78.855

−0.011

78.637

78.630

−0.007

吊杆9

78.644

78.644

0

78.871

78.870

−0.001

78.644

78.650

0.006

Table 2. Measured data of arch rib alignment

2. 拱肋线形实测数据表

测量位置

左拱肋高程

中拱肋高程

右拱肋高程

理论

实测

误差

理论

实测

误差

理论

实测

误差

(m)

(m)

(m)

(m)

(m)

(m)

(m)

(m)

(m)

小里程拱脚

85.216

85.202

−0.014

85.515

85.500

−0.015

85.180

85.173

−0.007

1/4拱

93.072

93.082

0.010

93.187

93.177

−0.010

93.089

93.094

0.005

拱顶

95.666

95.662

−0.004

95.785

95.789

0.004

95.682

95.662

−0.020

3/4拱

91.303

91.294

−0.009

91.579

91.574

−0.005

91.436

91.418

−0.018

大里程拱脚

86.675

86.686

0.011

86.017

85.999

−0.018

86.581

86.584

0.003

5.3. 导梁挠度监控结果

由于钢箱系杆拱桥顶推时间长,考虑到导梁的结构状态的重要性,因此,监测导梁挠度的频率较快,监测数据较多,但是,由于篇幅有限,因此选取最危险工况时导梁挠度实测记录表,即顶推第三天数据,如表3所示。

由前期结构分析中图4可知:最危险工况左、中、右导梁累计挠度分别为−68 mm、−65 mm和−68 mm。因此,由表3中数据可以得到:最大危险工况时,左导梁、中导梁和右导梁的累计挠度变化分别为−66 mm、−63 mm和−68 mm,均未超过计算值。通过实时监测导梁挠度变化,在顶推过程中导梁整体状态良好,挠度变化较为稳定。

Table 3. Measured deflection data of launching nose

3. 导梁挠度实测数据表

测点位置

测点时间

测点坐标(m)

挠度变化(mm)

X

Y

Z

与上次比

与初始值比

导梁1 (北)

初始值

3135454.303

38581668.906

78.141

/

/

顶推中8

3135452.362

38581635.492

78.078

−12

−63

顶推中9

3135451.770

38581629.120

78.073

−5

−68

顶推中10

3135451.468

38581621.694

78.092

19

−49

顶推中11

3135451.293

38581614.254

78.100

8

−41

顶推中12

3135450.808

38581607.712

78.093

−7

−48

导梁2 (中)

初始值

3135440.717

38581669.994

78.155

/

/

顶推中8

3135438.686

38581636.357

78.098

−9

−57

顶推中9

3135438.090

38581630.000

78.092

−6

−63

顶推中10

3135437.793

38581622.663

78.110

18

−45

顶推中11

3135437.613

38581615.307

78.118

8

−37

顶推中12

3135437.123

38581608.886

78.112

−6

−43

导梁3 (南)

初始值

3135428.013

38581671.102

78.132

/

/

顶推中8

3135424.946

38581637.273

78.068

−9

−64

顶推中9

3135424.359

38581631.109

78.066

−2

−66

顶推中10

3135424.061

38581623.587

78.083

17

−49

顶推中11

3135423.880

38581616.422

78.093

10

−39

顶推中12

3135423.392

38581609.989

78.084

−9

−48

5.4. 临时墩沉降监控结果

顶推过程中临时墩沉降监测结果如表4所示。

Table 4. Measured settlement data of temporary piers

4. 临时墩沉降实测数据表

测点位置

测点时间

测点坐标(m)

沉降(mm)

X

Y

Z

与上次比

与初始值比

L5 (北)

初始值

3135456.622

38581668.440

71.762

/

/

顶推中1

3135456.617

38581668.443

71.758

−4

−4

顶推中2

3135456.615

38581668.442

71.757

−1

−5

顶推中3

3135456.618

38581668.444

71.759

2

−3

L5 (中)

初始值

3135439.848

38581669.809

71.788

/

/

顶推中1

3135439.851

38581669.811

71.787

−1

−1

顶推中2

3135439.850

38581669.810

71.784

−3

−4

顶推中3

3135439.848

38581669.810

71.783

−1

−5

L5 (南)

初始值

3135426.180

38581670.924

71.829

/

/

顶推中1

3135426.178

38581670.920

71.827

−2

−2

顶推中2

3135426.177

38581670.922

71.825

−2

−4

顶推中3

3135426.178

38581670.923

71.825

0

−4

L6 (北)

初始值

3135453.615

38581626.884

71.963

/

/

顶推中1

3135423.618

38581626.883

71.967

4

4

顶推中2

3135426.619

38581626.882

71.964

−3

1

顶推中3

3135426.618

38581626.884

71.963

−1

0

顶推中4

3135426.616

3135426.885

71.961

−2

−2

L6 (中)

初始值

3135439.894

38581627.954

71.985

/

/

顶推中1

3135439.898

38581627.952

71.988

3

3

顶推中2

3135439.896

38581627.953

71.984

−4

−1

顶推中3

3135439.895

38581627.953

71.984

0

−1

顶推中4

3135439.892

38581627.955

71.982

−2

−3

L6 (南)

初始值

3135426.187

38581629.064

71.967

/

/

顶推中1

3135426.189

38581629.067

71.970

3

3

顶推中2

3135426.188

38581629.066

71.967

−3

0

顶推中3

3135426.186

38581629.064

71.964

−3

−3

顶推中4

3135426.190

38581629.066

71.962

−2

−5

表4可以看出:在主桥进行顶推施工过程中,各临时墩沉降变化处于正常范围内,最大值未超过5 mm,临时墩结构状态正常。

5.5. 轴向偏位监控结果

顶推施工完成后主桥轴向偏位实测数据见表5所示。

表5的数据可以看出:通过实时监测落梁时各点位的轴向偏位,各点误差控制在10mm以内,顺利完成了顶推施工工作。

Table 5. Measured axial deviation of main bridge after incremental launching

5. 顶推施工完成后主桥轴向偏位实测表

测点位置

测点坐标(m)

理论轴向偏位(m)

实际轴向偏位(m)

误差(mm)

X

Y

Z

左系梁小里程

3135427.843

38581672.046

77.981

−13.750

−13.745

−5

左系梁跨中

3135426.252

38581652.462

78.105

−13.750

−13.753

−3

左系梁大里程

3135424.485

38581630.470

78.237

−13.750

−13.742

8

中系梁小里程

3135441.495

38581670.386

78.201

0

−0.003

−3

中系梁跨中

3135439.902

38581650.578

78.336

0

0.005

5

中系梁大里程

3135437.850

38581625.297

78.461

0

−0.004

4

右系梁小里程

3135455.249

38581669.880

77.989

13.750

13.747

−3

右系梁跨中

3135453.553

38581648.716

78.122

13.750

13.757

7

右系梁大里程

3135451.477

38581626.029

78.249

13.750

13.752

2

左拱肋拱顶

3135426.245

38581652.277

94.630

−13.750

−13.745

−5

中拱肋拱顶

3135439.862

38581650.105

94.628

0

0.003

3

右拱肋拱顶

3135453.638

38581649.837

94.639

13.750

13.756

6

6. 结论

本文以跨武吉高速立交桥主跨钢箱系杆拱桥为工程背景,针对多拱面系杆拱桥这一新型复杂结构,系统研究了其顶推施工监控关键技术。通过精细化有限元分析,确定了顶推全过程的最不利工况,并基于自动化实时监测系统,对顶推施工期间拱桥关键部位的应力、变形等结构状态进行了全过程跟踪监测。通过实时对比理论计算与实测数据,实现了施工过程的动态反馈与调整。

监测结果表明,顶推过程中梁、拱应力、线形、导梁挠度、临时墩沉降及结构轴向偏位等各项指标均符合规范限值,落梁后结构线形平顺、内力分布合理,施工监控目标圆满完成。本研究形成的一套针对多拱面系杆拱桥顶推施工的监控方法与技术措施,可为同类桥型的施工控制提供参考。

参考文献

[1] 赵人达, 张双洋. 桥梁顶推法施工研究现状及发展趋势[J]. 中国公路学报, 2016, 29(2): 32-43.
[2] 赵哲. 简支钢箱系杆拱桥整体顶推施工过程分析[J]. 交通科技与管理, 2024, 5(11): 168-170.
[3] 贾海兰, 李志成. 钢箱梁桥顶推施工安全分析[J]. 科技与创新, 2025(1): 114-116, 120.
[4] 冯永航, 于传君. 钢混组合梁桥顶推施工监控技术研究[J]. 北方交通, 2025(1): 23-27.
[5] 周苍华, 程潜, 王杨, 等. 悬链形上加劲钢桁梁桥顶推施工监控技术研究[J]. 市政技术, 2023, 41(9): 199-206.
[6] 王国兴. 跨越城市繁忙道路钢箱拱桥顶推施工技术研究[J]. 中国高新科技, 2020(10): 86-87.
[7] 宋郁民, 郝晋新, 赵志明. 大跨度系杆拱桥顶推施工技术研究[J]. 施工技术, 2017, 46(6): 858-861.